Refine Search

3945 SW Badger Avenue, Lot #Lots 1-4, Redmond, OR 97756

$500,000
  • 3945 SW Badger Avenue, Lot #Lots 1-4, Redmond, OR 97756 Main Photo

5 Total Photos [Click to View All]

Active
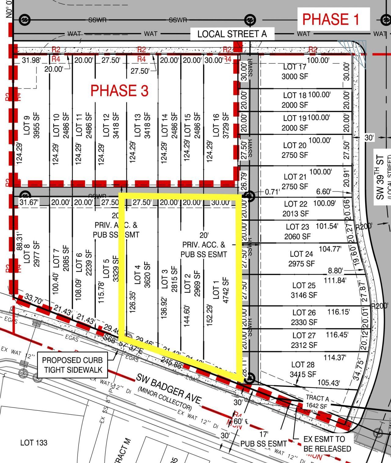
LOT SIZE 0.360 acres MLS#220214440
STATUSActive PROPERTY TYPELand - Residential SUBDIVISIONOwen Ridge

Property Description

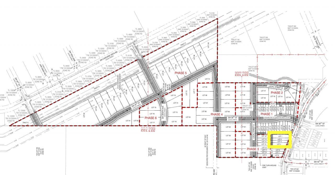
4 separate adjoining townhome lots?ideal for investors or those seeking multi-unit ownership. Both single-level & 2-level plans available or bring your own builder. SHOVEL READY w/ utilities stubbed at lot. Owen Ridge is a new neighborhood in desirable SW Redmond is featuring beautiful mountain views and located just blocks from coffee shops, gelato, a brewery restaurant, schools, and only a short distance to golf, the airport, shopping, and Bend side of town. Construction is underway on single-family homes, single & two-level townhomes. Dont miss this exceptional investment opportunity! Listing Agent related to Seller.

3945 SW Badger Avenue, Unit Lots 1-4 | MLS# 220214440

This land located at 3945 SW Badger Avenue, Unit Lots 1-4, Redmond, OR 97756 is currently listed for sale with an asking price of $500,000. The property has approximately 0.36 Acres. Search Redmond real estate on robertbacon.fnrhomes.com today.

Property Features

Property Type: Land - Residential
Garage: 8
Lot Size: 0.36 Acres
Taxes: $0

Feature Descriptions

Sewer: Public Sewer
Special View Info: Cascade Mountains, Neighborhood

Local Schools

High School: Ridgeview
Middle School: Obsidian
Elementary School: Sage

Listed By / Shown By

Listed By

Agency Name: Keller Williams Realty Central Oregon

Shown By

Agent Name: Bob Bacon
Agent Phone: (541) 891-0309
Agency Title: Fisher-Nicholson Realty LLC

IDX logo

Estimate Your Payment

Estimated Payment

$ 2,840.71 per month $2,694.87 Principal & Interest $0.00 Property Tax (data not provided by mls) $145.83 Homeowner's Insurance

Change Payment Information

%
years/fixed
yearly
yearly (est.)
(Payments are an estimate and may vary by lender)

Login to My Homefinder

Pixel